Принцип работы тракторного приспособления
Работа устройства для копания картофеля циклична и состоит из нескольких основных этапов:
- Сначала устройство подкапывает режущим механизмом грядку картофеля на глубину расположения в нём клубней.
- На следующем этапе механизм взрыхляет землю рядом с клубнями, это создает около корнеплода небольшое свободное пространство.
- При помощи лемеха земля захватывается и попадает в специализированный стряхивающий механизм. Это может быть барабан или лента транспортера. Большая часть земли отсеивается, остаются только клубни.
- На заключительном этапе происходит укладка собранных плодов картофеля на поверхность поля. Остается только пройти вдоль гряды и собрать картофель.
На рынке большое разнообразие картофелекопательных механических устройств в разной ценовой категории. Цена зависит от сложности устройства механизма:
Распашные копалки для картофеля
Наиболее просты в использовании. Данный вид оснащен клиновидными или плугообразными распашными лемехами. Принцип работы очень прост: механизм разрезает почву и поднимает клубни наверх. Устройство подходит как для трактора, так и для мини-трактора.
Швыряльный
Это однорядное, металлическое устройство с лемехом и вращающимся ротором. Принцип работы механизма: он подкапывает 1 ряд картофельных клубней на установленную глубину, размельчая клубненосный слой и выбрасывая клубни на поверхность земли.
Продуманная конструкция и высокая производительность картофелекопалки позволяет за короткое время выкапывать клубни, не повреждая их. Картофелекопалка аккуратно приподнимает слой земли, просеивает его, таким образом, все корнеплоды видны на поверхности и в земле ничего не остается.
Элеваторные
Предназначены для работы с лёгкими и средними почвами, влажностью не более 30%. Один элеватор является навесным, второй — каскадным. Работает от собственного приводного механизма. Между элеваторными прутками протираются небольшие комочки земли. Клубни отделяются частично от ботвы и подаются на каскадный элеватор, для более интенсивного измельчения земли.
Затем вся обработанная масса подается на вибрационную решетку для тщательного очищения. После очистки клубни укладываются на поле и собираются вручную.
Грохотовая
Наиболее сложный механизм, состоящий из лемеха и решетки. Нож срезает слой почвы вместе с клубнями картофеля. Клубни попадают на решетку и очищаются от грунта с помощью вибрации. После этого картофель ложится на поверхность почвы в ряд.
Этот механизм способен работать на более тяжёлых грунтах, при этом не повреждая клубни и не оставляя ничего в почве.
По сравнению с другими, вибрационная копалка — наиболее дорогая, поэтому использовать данный вид , чтобы копать картошку на маленьких участках нецелесообразно.
Как сделать картофелесажалку для мотоблока своими руками?

- сбор рамы. Это соединённые швеллеры, а также продольно расположенные лонжероны, закреплённые тремя поперечными элементами. Впереди устанавливаются арка и вилки, по бокам – стойки деталей, отвечающих за высадку и закапывание лунок. Рама сбоку закрепляется пластинчатыми опорами, служащими семявыводящим механизмом. Колеса оборудуются грунтозацепамы, между ними деревянный диск в шесть сантиметров для захватывания клубней картофеля и их перемещения в лунки;
- изготовление бункера. Он может быть фанерным, но металлическая конструкция намного прочнее и надёжнее. Отмеренные четыре стороны бункера вырезаются и соединяются сваркой. Дно застилается резиной для предотвращения повреждения клубней. Укрепляется рама стальными полосами, они соединяют среднюю поперечную часть с аркой. Далее привариваются накладки и уголки толщиной 4 миллиметра. К лонжеронам крепится опора и подножка, которая состоит из металлического листа толщиной 5 мм;
- монтирование бункера. Устанавливается вертикальный лифт с чашами диаметром около 8 сантиметров. Для работы механизма его присоединяют к колесу, где работает цепная передача. Труба для вывода продукта закрепляется под лифтом и прижимается загребающей деталью. Звёздочка диаметром восемь сантиметров связывается со звёздочкой мотоблока для сцепления. Цепь, которой будет осуществляться передача, можно снять с велосипеда. Таким образом возможно добиться расстояния между лунками в 35 сантиметров;
- изготовление сиденья. Понадобится металлический уголок. Опора соединяется с досками, обтянутыми поролоном для большего удобства. Стальная труба может быть использована в качестве колёсной оси, которая подходит по размеру к раме.
- бороздорез внизу конструкции. В роли закапывающих элементов могут выступать диски от сеялки с двумя подшипниками;
- можно использовать практически любые колёса со старой техники.
Готовые чертежи значительно упростят процесс сборки, при этом комплект для посадки картофеля может иметь самые различные габариты.

Процесс высаживания картофеля трудоёмкий, требующий много сил и свободного времени. Автоматизация сельхозтехники позволила значительно облегчить работу. При этом необязательно приобретать дорогостоящую картофелесажалку на мотоблоки МТЗ и Нева, можно изготовить её самостоятельно.
Посадка картошки самодельной картофелесажалкой

Сначала почву нужно вспахать и проборонить, при возможности увлажнить. После формируются гребни. Навес состоит из бороздела для поступления картофеля в грунт и дискового окучника для засыпки лунок. Мотоблок комплектуется грунтозацепными колёсами и картофелесажалкой.
Перед тем, как сажать картошку мотоблоком, нужно настроить соответствующие параметры:
- глубину борозды, которая формируется;
- ширину между картофельными рядами;
- задаются настройки механизма укладки посадочного материала.
С помощью данного приспособления можно выполнить посадку картофеля всего за один подход.
Сажаем картошку мотоблоком:
- нарезать ровные посадочные борозды. Это дополнительное разрыхления грунта;
- пророщенные клубни картошки поместить ростками вверх на дистанции 30-45 сантиметров. Чем меньше посадочный материал, тем короче расстояние;
- борозды закрыть вручную граблями или с помощью мотокультиватора.
Формируя борозды, нужно оставлять расстояние в пределах 55 см. Этого будет достаточно для последующей обработки овоща (прополки, рыхления, окучивания, уборки), колеса смогут беспрепятственно проезжать, не причиняя вреда уже закопанной картошке.

Картофелесажалку можно сделать самостоятельно по готовым размерам, картинкам и чертежам. Данное устройство состоит из следующих элементов:
- Рамы, к которой крепятся основные детали агрегата.
- Контейнера под посадочный материал.
- Механизма, который отвечает за перемещение клубней в лунки.
- Рыхлителей для выкапывания лунок.
- Колёсной базы.
- Деталей, закапывающих лунки, после высадки в них картофеля.
Самодельная картофелесажалка может быть изготовлена из подручных материалов, которые легко раздобыть. Нужно заранее приготовить листы металла различного размера, болты и гайки, болгарку и сварку, колеса, швеллеры.
Сажаю по вспаханному полю при помощи трактора. Плуг имеет предплужник, поэтому все сидераты запахиваются на самую глубину борозд. Далее определяем место на вспаханной почве, где мы будем сажать картошку (рис. 2). Теперь берем картофелесажалку, идем на край вспаханного поля и с ее помощью определяем, сколько получится рядов для посадки картошки на грядке шириной «А».
Это делается следующим образом. От левого или правого края отступаем на расстояние «д» и ставим картофелесажалку с таким расчетом, чтобы клык пирамиды 1 находился на расстоянии «д». После чего наступаем ногой на перекладину 2 (рис. 1) и вдавливаем в землю все три клыка на полную глубину. В итоге получаем сразу три углубления, после чего приподнимаем картофелесажалку, т.е. вынимаем ее из трех пирамидальных отверстий, проделанных в земле. В эти отверстия впоследствии мы и поместим заготовленный посадочный материал.
Очень важно то, чтобы все три пирамидальные четырехугольные пирамиды-клыки 1 крепились к перекладине 2, как показано на рис. 3: одна из диагоналей пластины клыка 1 должна быть направлена перпендикулярно пластине 2
Это очень важно, ведь мы делаем три лунки одновременно, и чтобы при извлечении клыков земля не осыпалась в проделанные лунки, выполняем следующие движения.
- Быстрота и удобство.
- Нет надобности копать лопатой лунки, каждый раз при этом нагибаясь.
- Все работы выполняются в положении стоя.
- Пророщенную картошку с длинными глазками можно легко опустить в лунки, не обломав при этом ростки.
Некоторые особенности картофелесажалки
Так как картофелесажалка сама по себе имеет достаточно большой вес, то при установке ее на мотоблок обязательно нужно устанавливать впереди противовес, который не даст возможности агрегату задирать нос и обеспечит хорошую устойчивость.
На картофелесажалке обязательно должно быть установлено сидение и подставки под ноги.
Рама для сидения делается из двух сварных уголков, а само сидение – из досок, а затем обтягивается поролоном и кожзаменителем.
Подседельник крепится к лонжеронам уголками, и еще устанавливается подножка.
Работает это оборудование так: в бункер засыпаются картофелины, сверху укладывается еще несколько мешков, чтобы не бегать за картошкой с одного конца поля на другой.
Затем сеяльщик садится на свое место на картофелесажалке, а шофер – за мотоблок, и начинается движение со скоростью не выше 1 км в час.
Сеяльщик одновременно отправляет по клубню в семяпроводы с обеих сторон, и так производится посадка.
Когда картофелины попадают в землю, их обязательно нужно присыпать землей. Вот для этого и были сконструированы заделывающие диски, которые при вращении сдвигают верхний пласт земли и заваливают картофель.
Диски сконструированы так, что имеют определенный угол к борозде и при движении картофелесажалки вращаются, поэтому происходит засыпка картофеля землёй.
Устройство заделывающих дисков позволяет менять глубину подреза пласта одним из трех вариантов:
- Достаточно ослабить стремянки, при помощи которых опоры прижаты к стойкам.
- Можно изменить угол, под которым диски будут входить в почву: для этого достаточно повернуть стойки вокруг оси.
- Отрегулировать перемещение дисков в нужную сторону по осям вращения. Для этого предусматривается по четыре штифта на ось втулки, передвижением которых можно изменить захватную ширину дисков.
Можно узнать здесь все о самых больших карьерных самосвалах.
По следующему адресу http://spez-tech.com/tehnika/selhoz/dlya-sadovodstva/kak-vyibrat-kultivator-d-dachi.html для вас подготовлена статья, позволяющая определиться с вопросом, какой культиватор выбрать для дачи.
При помощи этих трех вариантов можно отрегулировать движение картофелесажалки так, что действия заделывающих дисков будут практически идеальны. Это подбирается по типу земли, на которой производится посадка.
После того как картофель посажен на одинаковом расстоянии и заглублен при помощи заделывающих дисков, остается еще одна работа, которую обязательно нужно провести.
На поле остаются следы от картофелесажалки и мотоблока, которые нужно убрать. Это делается при помощи разрыхлителей – культиваторных лап на стойках.
Здесь также можно отрегулировать глубину их посадки в землю при помощи передвижения в стойках вертикально. Их фиксацию делают при помощи сквозных пальцев в обоймах.
Вашему вниманию представлено видео, в котором показано, как работает картофелесажалка для мотоблока, сделанная своими руками:
Если вы нашли ошибку, пожалуйста, выделите фрагмент текста и нажмите Ctrl+Enter.
На чтение: 7 минут Нет времени?
Если вы хотите облегчить процесс выращивания картофеля, обратите внимание, какими возможностями обладает картофелесажалка для мотоблока. Это функциональное приспособление вместе с картофелекопалкой позволяет механизировать процесс посадки и выкапывания столь популярного овоща
Предлагаем познакомиться с конструктивными особенностями подобных устройств и порядком изготовления их своими руками.
Читайте в статье
Как сделать картофелесажалку?
Рассматривая вариант изготовления такого устройства самостоятельно нужно вначале продумать все узлы, входящие в ее конструкцию, для этого необходимо выполнить чертеж, указав на нем все основные и вспомогательные размеры.
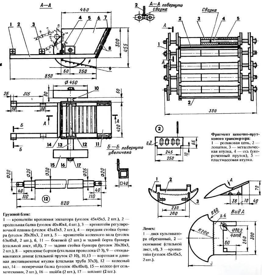
Рама
Она представляет собой сварную конструкцию, выполненную из двух длинных лонжеронов, для которых могут использоваться несколько кусков швеллера. Между ними привариваются три стальные перемычки. На одном конце лонжеронов приваривается арка – будет передняя часть приспособления. На арке располагается вилка с центральной тягой. К раме приваривается два крепежных пальца, они необходимы для нижней тяги.
С двух внешних сторон рамы приварены стойки для устройства подачи посевного материала, они выполнены из пластин. Рядом с ними имеются опоры для заделывающих дисков. Для усиления рамы, и придания ей жесткости к ней привариваются накрест две планки, они располагаются ближе к арке, которая также усиливается накладками, выполненными из стали толщиной 4 мм. Из листа, указанной толщины вырезаются прямоугольные треугольники.
Возможно вам также будет интересно узнать о том, можно ли сажать помидоры после картофеля.
Бункер
На расположенных «внахлест» пластинах, укрепляющих раму, установлен бункер, он крепиться к ним болтами.
Бункер можно выполнить из листа фанеры, только он должен быть в толщину не менее 1,2 см. На листе следует разметить отдельные детали, вырезать их ножовкой или электролобзиком, а затем закрепить между собой прибегнув к стальным уголкам.
Детали бункера вначале смазывают олифой, а на готовую емкость для картошки наносится водостойкая краска, после ее высыхания внутрь бункера укладывают резиновую прокладку, которая убережет посадочный материал от повреждений.
Рыхлитель и колеса и их ось
На раму при помощи болтов устанавливаются держатели для рыхлителей. Они выполнены сварными в виде штанги, имеющей квадратную форму. Для их изготовления применяются уголки с размерами 500×500×50 мм. Если сэкономить и для этих целей использовать квадрат, то в процессе работы есть вероятность деформировать его.
К полученной из уголков штанге крепятся обоймы, в которые затем монтируются стойки посадочного устройства. Соединения этих деталей должно происходить с соблюдением высокой точности, допустимый зазор между ними не может быть больше 1 мм.
Колеса картофелесажалки крепятся на ось, для нее выбирается чугунная или стальная труба, с толстыми стенками. В два конца труб вставляются цапфы, их нельзя выточить вручную, обязательно потребуется токарный станок. В выбранной для оси трубе просверливаются отверстия, в которые вставляются штифты для удержания шипов. После выполнения полной сборки они завариваются. Ось крепится к раме болтами и двумя стальными прижимами. Также будет интересно узнать о том, какие овощи можно сажать после картофеля.
Ступицы от колес имеют два шарикоподшипника, которые надеты на шипы осей, такое положение убережет их внутренности от грязи и пыли, чтобы предотвратить попадание в них корней и листвы растений целесообразно изготовить для них манжеты или сальники.
Сеялки
Для их изготовления понадобиться чугунная или стальная труба с толщиной стенки не менее 0,3 см, а в диаметре 10 см. От толщины ее стенки будет зависеть надежность работы картофелесажалки, ведь если взять ее меньшей толщины и большего диаметра, то она под напором земли может прогнуться.
В нижней части трубы приваривается бороздорез. Он изготавливается из стального листа толщиной не менее 0,6 см. Для регулировки заглубления сошника, проделывающего борозды необходимо ослабить стремянки и регулируя их вертикальное перемещение вдоль опор рамы, выставить его на нужную глубину.
Если в хозяйстве раньше применялась сеялка СО-4,2, то от нее можно взять диски для выполнения борозд, только их требуется слегка изменить. В стандартной комплектации таких дисков предусмотрен один подшипник, чтобы установить на его место два аналога требуется расточить ступицу до нужных размеров. У подшипников, предназначенных для картофелесажалки, одна сторона закрыта, а вторая имеет диаметр равный ранее встроенному. При таком соединении внутренняя часть подшипников защищена от мусора и пыли.
А вот как применяется зола как удобрение для картофеля, и как осуществляется процедура, указано здесь.
На видео – самодельная картофелесажалка для мотоблока своими руками:
Как сделать самостоятельно сажалку для картофеля
Многие овощеводы и фермеры предпочитают не тратить средства, а изготавливать картофелесажалки своими руками.
Необходимые материалы и инструменты
Для изготовления потребуются:
- Уголки и металлические трубы, из которых будет создаваться рама. Также они нужны для монтажа других элементов конструкции.
- Шестерни — элементы, которые обеспечивают работу механизма посадки.
- Бункер для закладки картофеля. Берут готовую емкость или изготавливают ее из листовой стали.
- Части, предназначенные для создания лунок и их закапывания после посадки.
- Колесная база.
Перечисленные элементы — обязательные для домашней картофелесажалки. Их изготавливают самостоятельно или же снимают со старой сельскохозяйственной техники.
Для работы понадобятся:
- болгарка;
- сварочный аппарат;
- лонжероны;
- швеллеры;
- пара осей;
- подшипники;
- цепь от двигателя автомобиля;
- две звездочки для цепи;
- проволока сечением 6 мм;
- листовой металл толщиной 2 мм;
- профильная стальная труба;
- любая конусообразная емкость для бункера.
Чертежи, размеры и основные элементы
Внешне самодельная картофелесажалка похожа на тележку на колесах, присоединенную к мотоблоку или минитрактору. Рассмотрим, из чего состоит самая простая конструкция.
«Тележку» ставят на раму из швеллеров. К ее передней части монтируют стальную арку и вилку. По бокам рамы устанавливают стойки заделывающих дисков и опоры системы подачи клубней.
Важно! Заделывающие диски — важный элемент. Благодаря им борозды получаются ровными, а картофель не заглубляется больше, чем надо

Раму, в свою очередь, устанавливают на ось с двумя колесами шириной не менее 15 мм, оснащенными грунтозацепами. Простые резиновые колеса не подойдут, так как будут пробуксовывать.

По готовым чертежам с размерами можно своими руками изготовить крутую картофелесажалку практически из металлолома (см. фото 1, 2, 3, 4).


Пошаговая инструкция
Многие умельцы дополняют «базовую сборку», например, дозатором для удобрений. Такое устройство позволяет одновременно с посадкой осуществлять подкормку.
Рассмотрим подробнее процесс сборки сажалки для мотоблока и минитрактора.
Для мотоблока
Сначала изготавливают раму. Для этого используют швеллер (стальной типоразмер 8). К раме крепят продольные лонжероны с тремя поперечинами.
Для бункера обычно берут листовую сталь, но для малой техники подойдет и фанера толщиной 10 мм. На 20 кг картофеля этого будет достаточно.
В бункере устанавливают лифт, который закрепляют в вертикальном положении. На нем располагают чаши диаметром 5-8 см. Чтобы все работало, механизм присоединяют через цепную передачу к ведущему колесу. Для вывода клубней семяпровод закрепляют под лифтом.
Звездочку (8 см) для передачи силы связывают по цепи с мотоблоком. Этот элемент передает движение прокапывающим дискам.
Такая конструкция позволяет использовать обычную велосипедную цепь. Расстояние между клубнями будет составлять 35 см.
Важно! После основного монтажа раму обязательно укрепляют при помощи стальных полос. Арке также требуется усиление
Для этого используют накладки из листовой стали.
Для минитрактора
Схема такого агрегата представлена на фото:

Алгоритм действий:
- Изготовление начинается с рамы, на которой будут размещаться остальные элементы. Для этого из швеллеров сваривают продольные лонжероны. Их соединяют между собой стальными полосками.
- Спереди приваривают арку с вилками, направленными к центральной тяге.
- Раму усиливают стальными балками. Их закрепляют с другой стороны и к середине арки.
- Из уголка делают опору подседельника и монтируют на лонжерон.
- К наклонным балкам приваривают кронштейн, на котором будет размещаться бункер.
- Резервуар для картофеля сваривают из листовой стали толщиной 2 мм.
- Бункер закрепляют на кронштейне болтами.
- Теперь к нижней части рамы монтируют рыхлитель и колесную ось. Для оси в качестве основы берут обычную стальную трубу, на концах которой размещают цапфы. Для колесной базы можно брать колеса от старой техники.
- Держатели рыхлителя изготавливают в виде квадратов, сделанных из штанг. По концам наваривают обоймы с толщиной стали 6 мм. В них будут располагаться культиваторные стойки.
- Сеятель делают из стальной трубы с сечением 100 мм. Минимальная толщина стенки должна составлять 3 мм.
- К нижней части этой трубы приваривают бороздорез. Толщина стали — не менее 6 мм.
Самодельная картофелесажалка для мини-трактора
Однорядные и двухрядные картофелесажалки работают с мини-тракторами мощностью 18-25 лошадиных сил. В классическом исполнении картофелесажалка для трактора состоит из бункера для клубней, рамы, сошки-плуга для рытья борозды, креплений конвейерного типа для захвата клубней и дисков для заделки борозды.
- Сошка-плуг формирует борозду.
- Направляющие конвейера достают клубень из бункера и забрасывают в борозду.
- Диски засыпают канавки.
В зависимости от мощности имеющегося трактора и объема посадочных работ картофелесажалку можно сделать как однорядной, так и двухрядной.
Изготовление
Начинают с установки рамы, изготовленной из швеллера 8 размера. К раме крепят лонжероны с поперечинами для образования каркаса.
Затем спереди каркаса сваркой устанавливают крепления для соединения с мини-трактором и приваривают к лонжеронам металлические элементы для крепления бункера. Внизу рамы монтируют сошник-плуг и колесную ось.
Бункер-емкость для картофеля выпиливают из фанеры и соединяют металлическими уголками. Для предотвращения повреждения картофеля, бункер желательно обить мягким материалом.
В принципе, бункером может стать любая емкость, например, бак от старой стиральной машины.
Колеса картофелесажалки должны быть широкими, чтобы не создавать излишней нагрузки на почву. Некоторые дачные умельцы советуют делать колеса из старых газовых баллонов, разрезанных поперек, и с приваренными на внешнюю сторону полосками металла для лучшего сцепления с почвой.
В качестве сеялки выступает металлическая труба с диаметром от 10 см, обрезанная по высоте.
Для картофелесажалки в паре с мини-трактором желательно предусмотреть и место помощника, который будет контролировать процесс.
Сборка своими руками
Картофелесажалка должна размещаться на шасси из швеллера с парой лонжеронов, соединяющихся друг с другом тремя поперечинами. Колесная база — это всего два колеса, снабженных грунтозацепами.
Между колесами располагается деревянный диск толщиной 6 см. У него есть две пары пазов, диаметр которых должен быть настолько большим, чтобы можно было захватывать любые по размеру корнеплоды. Впрочем, вместо деревянного диска с пазами можно использовать шестерни, цепи и лотки для картофелин.
Одним из самых важных и выделяющимся на фоне других элементов мотоблока с картофелесажалкой является бункер, в который загружаются корнеплоды перед началом работы. Эта большая емкость для картофеля располагается над колесами. Изготовить ее можно из металлических листов толщиной в несколько миллиметров, но чаще всего не желающие раскошеливаться на покупку полностью готового аппарата владельцы загородных территорий используют бачок от старой стиральной машинки советского образца.
Если же по той или иной причине был выбран более сложный метод изготовления бункера для корнеплодов, нужно иметь в виду: стенки металлической емкости должны быть наклонными, ведь в этом случае картофелины будут одна за другой скатываться вниз.
Диск с пазами или заменяющая его система шестерней сверху прикрывается специальным щитком. Он нужен для предотвращения случайного выпадения картофелин до их попадания в почву. Рама картофелесажалки должна быть укреплена полосками из стали. Они должны располагаться от проходящей по центру поперечины до арки. Кроме того, необходимо прикрепить металлические уголки и стальные накладки толщиной около 4 мм.
К лонжеронам нужно присоединить опору и подножку, выполненную из стального листа толщиной 5 мм. При определении высоты расположения подножки нужно учитывать рост человека, который будет управлять аппаратом во время посадки овоща. В общем, использование картофелесажалки не должно вызывать никаких трудностей.
Сиденье для управляющего можно выполнить из металлического уголка, тонких досок, поролона и плотной ткани. Уголок следует использовать в качестве каркаса. Сверху к нему присоединяются несколько досок. Для повышения комфортности доски сверху выстилаются поролоном и обтягиваются плотной тканью. Можно также использовать кресло от автомобиля или оставить аппарат без сиденья.
К числу основных элементов картофелесажалки относятся колеса. Изготовить их с нуля довольно трудно, поэтому лучше взять готовые колеса от старой сельскохозяйственной техники. Главное не забывать о том, что они должны быть снабжены грунтозацепами. Каждая из удерживающих колеса ступиц должна иметь пару подшипников. Чтобы защитить их от грязи, следует использовать войлочные прокладки.
Ось к раме прикрепляется с помощью уголков и сварки. Картофелесажалка, изготовленная из металла, имеет большой вес, и поэтому при прикреплении ее к мотоблоку необходимо установить противовес.
Изготовленный собственными руками аппарат для посадки картофеля — это не только значительная экономия денег, но и очень удобное приспособление. Любой человек при его создании будет учитывать именно свои предпочтения. К тому же при эксплуатации самодельную картофелесажалку можно время от времени совершенствовать, снабжая новыми полезными элементами.
Посадка картофеля – трудоемкий процесс, особенно если нужно обработать почву большой площади. Чтобы облегчить задачу, огородники используют мотоблок. С помощью этой техники посадка картошки не забирает много времени, а обработать огород площадью в 5-6 получается за несколько часов.
Какие приспособления нужны
Чтобы высадить клубни картофеля, понятно, что одного единственного мотоблока будет недостаточно, потребуется дополнительные устройства, в частности картофелесажалка. Это оборудование позволит провести процедуру качественно и быстро, без применения тяжелого физического труда.

Эффективность такого подхода состоит еще и в том, что картофелесажалка вполне может быть самодельной. То есть изготовить приспособление может каждый своими руками: необязательно покупать готовое изделие. Это позволяет оптимально подобрать размеры картофелесажалки для мотоблока, которые будут соответствовать потребностям.
Поэтому приведем схему и чертеж такого устройства, чтобы понимать, какой можно получить в итоге агрегат, если его делать своими руками.
























































