Преимущества и недостатки
Печки на солярке обладают рядом преимуществ по отношению к твердотопливным котлам:
- компактностью, мобильностью. Обычно такой прибор имеет малые габариты и занимает небольшую площадь. Кроме того, печку на солярке можно перемещать в любое удобное место;
- высоким КПД при небольшом расходе солярки;
- отсутствием дымоотводной трубы. Сооружение дымоотводной трубы в любом помещении предполагает нарушение целостности чердачного перекрытия и кровельного покрытия, что влечёт за собой дополнительные траты финансов как на устройство самой трубы, так и установку жаропрочных материалов в местах прохода трубы через ограждающие конструкции строения;
- продукты сгорания во время работы печки на солярке не попадают в помещение, а значит находиться в неё можно не опасаясь за своё здоровье;
- возможностью регулировки температурного режима в зависимости от температуры в помещении;
- для выхода на полную мощность печки не требуется поддув.
К недостаткам обогрева печкой на солярке можно отнести:
- выделение дыма и неприятного запаха в момент розжига, поэтому для проведения этой процедуры агрегат лучше вынести на улицу;
- солярка обладает специфическим запахом, который ощущается наиболее сильно при заправке прибора.
Преимущества и недостатки
К положительным качествам чудо-печи принадлежат:
- Не требует подключения к централизованному отоплению или к электричеству.
- Небольшие компактные размеры.
- Доступное и недорогое топливо.
- Низкая цена.
- Наличие винта, позволяющего регулировать интенсивность подачи тепла.
- Возможность использовать прибор для подогрева пищи или воды.
- Не нужно сооружать дымоход, поскольку от печи нет открытого огня.
- Мобильность устройства.
- Низкий вес.
- Экономный расход топлива, порядка от 200 до 400 г/ час.
- Удобно эксплуатировать.
- Для установки не требуется брать специальные разрешения и согласовывать проект с соответствующими инстанциями.
Имеются и недостатки, например:
- Прибор не следует использовать для постоянного отопления помещения, поскольку от него исходит неприятный запах и возможно попадание дыма в воздух.
- Требует периодической замены фитилей.
- Время от времени устройство следует чистить.
- Требует специально оборудованного места и четкого соблюдения норм пожарной безопасности.
- Неприятный запах.

 Устройство печи на солярке
Примеры конструкций
Буржуйка
Легче всего переделать под солярку печку-буржуйку. Тепловая мощность будет до 5-7 кВт при расходе топлива 300-500 мл/час. Топливная аппаратура той же конструкции практически без изменений может быть использована в более мощных отопительных котлах на дизеле, а также для запуска на отработке и керосине.
Схема доработки буржуйки под дизтопливо дана на рис. ниже. Дефлекторы не дают парам горючего остыть, прежде чем те сгорят. Кстати, дефлекторы увеличивают экономичность печи при запуске на дровах и угле. Высота бортика пламенной чаши – 60-80 мм; емкость ее не должна быть меньше емкости питательного резервуара (см. ниже). Ход печи на жидком топливе, если можно так выразиться, обратный: воздух поступает в настежь открытую дверцу топливника; поддувало закрыто. В противном случае печка становится прожорливой и быстро закоксовывается (обрастает нагаром).

Как переделать буржуйку на жидкое топливо
Питание, запуск и ход
Печь-капельница на солярке будет достаточно безопасной и проявит все свои достоинства только если топливная аппаратура собрана и налажена правильно. Выполняется питание капельной печи обязательно 2-ступенчатым, с буферным питательным резервуаром. Причина – довольно сильная зависимость частоты капели от наружной температуры и напора в подводящем трубопроводе. Напор, в свою очередь, определяется уровнем топлива в баке или степенью его наддува. Закапало реже – испаритель остыл, печка погасла, чаша переполнилась и топливо потекло наружу. Закапало чаще – капли не успевают испаряться, в чаше коптящее пламя, печка зря жрет горючку. Если нет питательного резервуара, может дойти вообще до беды: из печки потечет пылающая струя. Поэтому изготовление и запуск печей на жидком топливе с одноступенчатым питанием – занятие для оголтелых экстремалов или тех, кому терять больше нечего, а спать очень хочется.
Оба капилляра (см. рис.) выполняются из красной меди. Тут дело в смачиваемости металла топливом: по узкой трубке из другого материала оно или вовсе не просочится, или систему питания не удастся наладить. Налаживание начинают с подбора длины предохранительного капилляра диам. 1,5 мм. Объем питательного резервуара необходим 0,25-0,5 л; его высота – 7-12 см. Длину предохранительного капилляра подгоняют так, чтобы при заполненном до верха питательном резервуаре частота капели была 25-30 капель за 10 с.
Далее подгоняют питательный капилляр диам. 0,6 мм; топливо в баке должно быть залито на полный напор H. При полностью открытом игольчатом вентиле и минимально допустимой наружной температуре частота капели из топливопровода в питательный резервуар должна быть на 2-3 капли за 10 с меньше. Эту же частоту капели выставляют игольчатым краном при запуске печи при более высокой наружной температуре.
Для запуска печи в огневую чашу кладут сгорающий фитиль (см. выше). Когда он прогорит, как надо, наливают топливо в питательный резервуар и пускают капель из топливопровода. Печка будет на ходу 4-5 час; если время обогрева требуется меньшее, игольчатый вентиль прикрывают. Только от питательного резервуара ход печи продлится 1-1,5 час.

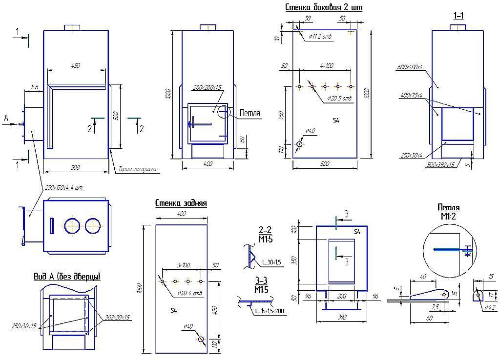
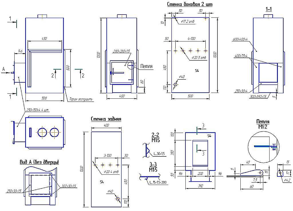
Чертежи печи с каменкой, пригодной для доработки на солярку
Для гаража
Печь на солярке и отработке для гаража
Печь на солярке для гаража должна запускаться и на отработке. Оптимальная конструкция гаражной чудо-печи показана на рис. справа; пламенная чаша под капель (выдвинута) является одновременно и емкостью для безнапорного сгорания масла. Мощность – до 5 кВт на одну колонну-дожигатель (райзер), но делать печку более чем на 2 райзера недопустимо, может взорваться! Данные конструкции:
- Материалы – квадратная профтруба 180х180х6 для лежака (камеры сгорания) и дожигателя, и 100х100х6 для райзеров.
- Длина лежака 380 мм, дожигателя 1000 мм, высота райзеров 500 мм.
- Отверстия в райзерах диаметром 10 мм на всех 4-х сторонах по 8 равномерно по оси.
- Для запуска печи на отработке питательный резервуар необходимо отсоединить, а патрубок капельницы снаружи заглушить.
- Отдельный дефлектор не нужен, им служит крышка лежака.
Принцип работы печи
Принцип работы печи на солярке заключается в следующем.
- Из топливного бака солярка самотеком поступает в фитильную чашу. Количество поступающего топлива регулируется.
- В фитильной чаше топливо при нагреве превращается в газообразную смесь. Сгорание смеси производится в камере горения.
- Конструкция печи предусматривает такое расположение элементов в камере горения, которое обеспечивает равномерное сгорание топлива.
- Расположенный в верхней части камеры горения особый элемент и спираль способны нагреваться до 800 градусов.

Печь имеет ряд предостережений:
- чтобы избежать едкого запаха в помещении, розжиг чудо-печи лучше производить на улице;
- по причине того же запаха не рекомендуется использовать изделие для обогрева жилых помещений на постоянной основе;
- при интенсивной эксплуатации необходимо чистить горелку и часто менять фитили.
Современная печь на солярке – это, прежде всего, безопасный и недорогой в обслуживании прибор, т. к. в камере сгорания все горючие элементы сгорают полностью.
Мини-печь с фитилем
Такие отопительные приборы можно приобрести в магазине. Конструкция печи состоит из двух основных частей – топливного бака и открытого резервуара. Сосуды связаны между собой, а подача топлива контролируется при помощи специального клапана. Еще один обязательный элемент мини-печи – это фитиль, чей кончик погружен в сосуд с горючим. Регулировка подачи солярки осуществляется благодаря специальному вентилю. После прокручивания вентиля открывается клапан между сообщающимися сосудами, тем самым пропитывая фитиль горючей смесью. Таким же образом аппарат выключается, перекрывая подачу топлива.
Разжигается такая печь вручную. Для этого подойдет спичка или зажигалка. Стоит поджечь фитиль через пару минут после открытия вентиля. Необходимо также подождать минут 10, пока печь прогреется. После автономная печь на солярке будет работать самостоятельно. Выключается мини-печь на дизельном топливе спустя 5 минут после того, как вы перекрыли вентиль.
Мощность заводских печей – от 1,8 до 5 кВт. Некоторые из них снабжены специальной металлической решеткой, на которой можно что-либо нагреть. Например, вскипятить воду. Такая конструкция подойдет для тех, кто много времени проводит в гараже в зимний период.
 Не стоит забывать, что у печи на солярке есть несколько существенных недостатков. В первую очередь, это едкий неприятный запах. Лучше всего разжигать фитиль вне помещения. Пары дизельного топлива токсичны и канцерогенны, такой отопительный прибор нельзя использовать круглые сутки. Также, если вы часто используете печь, необходимо на постоянной основе чистить горелку. Фитиль нуждается в регулярной замене.
  Дизельная мини-печь с фитилем промышленного изготовления
Дизельная мини-печь с фитилем промышленного изготовления
Достоинства дизельных теплогенераторов
— Установка устройства для отопления на светлом топливе является самой низкой среди прочих вариантов. Установка газового котла с учетом оборудования дымохода, получения разрешений у пожарников, санстанции, архитектурной организации будет стоить вам гораздо дороже. Также низкой стоимостью и простотой установки отличается электрический котел, но стоимость его энергоносителя – электроэнергии является крайне высокой. К тому же, далеко не каждая электрическая линия в состоянии выдержать такую высокую нагрузку.
— Если помещение, в котором устанавливается котел на светлом топливе, не контактирует с жилыми комнатами, то дымоход можно не обустраивать. В данном случае в стене делается отверстие, в которое выводится сэндвич – кусок дымоходной трубы таким образом, чтобы не произошло загорание стены. Больше никаких устройств не требуется. Турбина горелки самостоятельно выталкивает воздух.
— Работая в автоматическом режиме, котел сам поддерживает необходимую температуру воды в отопительной системе. Горелка автоматически выключается при достижении нужной температуры в системе и включается при остывании теплоносителя ниже установленного термического уровня. Горелка оснащена целой системой защитных устройств, обеспечивающих ее безопасное и надежное функционирование.
— Если правильно организовать работу системы, то отопители на дизельном топливе обеспечат практически идеальный температурный режим в помещении.
— В качестве энергоносителя используется светлое печное топливо, которое стоит приблизительно на 30% ниже, чем автомобильная солярка.
Недостатки отопления на дизельном топливе
— Несмотря на автоматизацию системы, она требует присутствия человека. Котел может быть оставлен без присмотра на время рабочего дня, но его нельзя оставлять для самостоятельного функционирования, например, на неделю. Причиной этого является плохое качество топлива, что может привести к остановке котла. Зимой это может привести к разрушению отопительной системы в целом. Решать эту проблему можно с использованием системы информирования с помощью смс. Это позволит вам быть в курсе состояния вашей отопительной системы.
— Горелка и котел требуют постоянного обслуживания.
— При некачественном топливе возможно присутствие в нем различных примесей, которые могут привести к засорению сопла и поломке насоса. Эту проблему можно решить при помощи фильтра. Труднее бороться с парафинами и другими веществами, имеющими высокую вязкость.
— Высокий уровень шума при работе.
— Горелка является энергозависимым устройством, которое требует наличия бесперебойного устройства.
Будьте внимательны при покупке топлива. Если ваша резервная емкость находится на улице и не утеплена, то необходимо приобретать зимнее топливо, а если бочка теплоизолирована, то возможно использование летнего топлива.
При выборе топлива для обогрева вашего жилья необходимо взвесить все «за» и «против» и остановиться на наиболее доступном и эффективном варианте.
Как выбрать чудо-печь
Выбирая горелку, следует обращать внимание на такие критерии:
Тепловая мощность. Она составляет от 1,8 до 5 кВт. При выборе следует исходить из того что, 1кВт способен обогреть 10 м2 помещения. Чем больше площадь, тем сильнее должен быть прибор.
 Материал
 Обратите внимание на материал, из которого изготовлена колба и горелка
 Корпус выполняется из металла или стекла
 Стеклянная чудо-печь гораздо эффективнее, но стоит дороже и требует очень осторожного обращения. Ее можно использовать исключительно для обогрева
Если планируете применять устройство для приготовления еды, следует остановить свой выбор на металлической горелке.
 Расход топлива. Количество расходуемой солярки напрямую зависит от мощности прибора:при мощности в 1,8 кВт – 160 мл/час;
 при мощности в 2,5 кВт и выше – от 180 мл/час.
Как сделать печку длительного горения своими руками
Принцип работы подобного агрегата основывается на том, что дрова не горят, а тлеют. Это дает возможность делать одну закладку дров, которой хватает на 12–15 часов.
Для изготовления печки нужна любая металлическая емкость, толщина стенок у которой не меньше 5мм и, конечно, подробные чертежи. Форма будущего отопительного устройства не играет существенной роли. Для примера берем старую железную бочку. Автогеном, сваркой или зубилом срезается верх (крышка) и зачищаются все заусенцы.

 Длительного горения
После этого необходимо вырезать круг меньшего размера, чем сечение бочки, к которому приварить трубу диаметром 100 мм. Труба должна выступать над верхним краем бочки на 15–20 см, если считать от низа топочной камеры. Снизу на этот круг нужно приварить еще несколько пластин, расположенных перпендикулярно относительно плоскости круга. Эта деталь будет служить для подачи воздуха в печь и одновременно гнетом для топлива
Важно нижние лопасти сделать закругленными по часовой стрелке, чтобы дым прежде, чем покинуть топочную камеру отдал все свое тепло стенкам печи
Спереди вырезается отверстие для загрузки дров и оснащается дверкой. Сзади вырезается отверстие для отвода дыма, куда вваривается труба диаметром 150–20 мм. На уровне 20 см от днища внутри бочки устанавливаются колосники, а спереди в этой части вырезается отверстие для удаления золы и шлака. Все сооружение сверху закрывается ранее вырезанной крышкой с отверстием для трубы. Крышку нужно снабдить ручками, для удобного пользования.
Под печку нужно сделать основательный фундамент из красного кирпича или бетона. Дымоходная труба выводится наружу. Располагать такую чудо-печку необходимо на некотором удалении от стен, в целях пожарной безопасности.
По какому принципу работает
Основным физическим принципом на котором работают практически все печки на солярке это принцип превращения энергии сгорания в тепловую энергию. Солярка, обычно самотёком поступает в камеру, где смешивается с воздухом и подогревается. Затем эта смесь поступает в камеру сгорания.

Устройство чудо-печки
В этой камере сгорая она нагревает либо стенки, либо специальный нагревательный элемент, который служит теплообменником. Продукты сгорания выводятся через специальный дымоход наружу. Кроме самой печки такой дымоход тоже выполняет функцию теплообменника и нагревает окружающий воздух в помещении.
Примеры конструкций
Буржуйка
Легче всего переделать под солярку печку-буржуйку. Тепловая мощность будет до 5-7 кВт при расходе топлива 300-500 мл/час. Топливная аппаратура той же конструкции практически без изменений может быть использована в более мощных отопительных котлах на дизеле, а также для запуска на отработке и керосине.
Схема доработки буржуйки под дизтопливо дана на рис. ниже. Дефлекторы не дают парам горючего остыть, прежде чем те сгорят. Кстати, дефлекторы увеличивают экономичность печи при запуске на дровах и угле. Высота бортика пламенной чаши – 60-80 мм; емкость ее не должна быть меньше емкости питательного резервуара (см. ниже). Ход печи на жидком топливе, если можно так выразиться, обратный: воздух поступает в настежь открытую дверцу топливника; поддувало закрыто. В противном случае печка становится прожорливой и быстро закоксовывается (обрастает нагаром).

Как переделать буржуйку на жидкое топливо
Питание, запуск и ход
Печь-капельница на солярке будет достаточно безопасной и проявит все свои достоинства только если топливная аппаратура собрана и налажена правильно. Выполняется питание капельной печи обязательно 2-ступенчатым, с буферным питательным резервуаром. Причина – довольно сильная зависимость частоты капели от наружной температуры и напора в подводящем трубопроводе. Напор, в свою очередь, определяется уровнем топлива в баке или степенью его наддува. Закапало реже – испаритель остыл, печка погасла, чаша переполнилась и топливо потекло наружу. Закапало чаще – капли не успевают испаряться, в чаше коптящее пламя, печка зря жрет горючку. Если нет питательного резервуара, может дойти вообще до беды: из печки потечет пылающая струя. Поэтому изготовление и запуск печей на жидком топливе с одноступенчатым питанием – занятие для оголтелых экстремалов или тех, кому терять больше нечего, а спать очень хочется.
Оба капилляра (см. рис.) выполняются из красной меди. Тут дело в смачиваемости металла топливом: по узкой трубке из другого материала оно или вовсе не просочится, или систему питания не удастся наладить. Налаживание начинают с подбора длины предохранительного капилляра диам. 1,5 мм. Объем питательного резервуара необходим 0,25-0,5 л; его высота – 7-12 см. Длину предохранительного капилляра подгоняют так, чтобы при заполненном до верха питательном резервуаре частота капели была 25-30 капель за 10 с.
Далее подгоняют питательный капилляр диам. 0,6 мм; топливо в баке должно быть залито на полный напор H. При полностью открытом игольчатом вентиле и минимально допустимой наружной температуре частота капели из топливопровода в питательный резервуар должна быть на 2-3 капли за 10 с меньше. Эту же частоту капели выставляют игольчатым краном при запуске печи при более высокой наружной температуре.
Для запуска печи в огневую чашу кладут сгорающий фитиль (см. выше). Когда он прогорит, как надо, наливают топливо в питательный резервуар и пускают капель из топливопровода. Печка будет на ходу 4-5 час; если время обогрева требуется меньшее, игольчатый вентиль прикрывают. Только от питательного резервуара ход печи продлится 1-1,5 час.

Чертежи печи с каменкой, пригодной для доработки на солярку
Для гаража
Печь на солярке и отработке для гаража
Печь на солярке для гаража должна запускаться и на отработке. Оптимальная конструкция гаражной чудо-печи показана на рис. справа; пламенная чаша под капель (выдвинута) является одновременно и емкостью для безнапорного сгорания масла. Мощность – до 5 кВт на одну колонну-дожигатель (райзер), но делать печку более чем на 2 райзера недопустимо, может взорваться! Данные конструкции:
- Материалы – квадратная профтруба 180х180х6 для лежака (камеры сгорания) и дожигателя, и 100х100х6 для райзеров.
- Длина лежака 380 мм, дожигателя 1000 мм, высота райзеров 500 мм.
- Отверстия в райзерах диаметром 10 мм на всех 4-х сторонах по 8 равномерно по оси.
- Для запуска печи на отработке питательный резервуар необходимо отсоединить, а патрубок капельницы снаружи заглушить.
- Отдельный дефлектор не нужен, им служит крышка лежака.
О безопасности
Даже «правильная» самодельная печь на солярке с точки зрения правил пожарной безопасности не существует – ППБ прямо запрещают использование самодельных отопительных приборов на жидком и газообразном топливе. Само наличие такого агрегата в домашнем хозяйстве делает любую страховку от пожара, взрыва и отравления летучими веществами недействительной, а его владельца и, возможно, изготовителя, виновным во всех последствиях какого бы то ни было происшествия из-за печи. Поэтому задача изготовления самодельной дизельной печи сводится к чисто техническим мерам обеспечения ее безопасности; формальная сторона – полностью ваш риск.
О парах солярки следует упомянуть подробнее. Они не просто вонючие, они токсичны, канцерогенны и пропитывают даже старый бетон. Поэтому для жилых помещений, хранилищ пищевых продуктов, теплиц, помещений для содержания домашнего скота и птицы однозначно пригодна только и только сертифицированная к данным условиям эксплуатации дизельная печь промышленного производства, причем не стационарная для временного использования.
Стационарные отопительные приборы на жидком топливе для индивидуального дома выпускаются и могут быть изготовлены самостоятельно с учетом – см. выше. Но в таком случае они обязательно должны быть двухконтурными, т.е. передавать тепло от сгорания топлива теплоносителю, и располагаться в несгораемой пристройке с отдельным, т.е. с улицы, входом.
3 Преимущества и недостатки
Одним из важнейших преимуществ агрегата является его мобильность. При необходимости печку можно не только перенести в другое помещение, но и взять с собой в дорогу. Также стоит отметить еще несколько преимуществ солярогаза:
- Обеспечивает независимость от центральных источников тепловой энергии.
- Предназначен для работы с доступным видом топлива.
- Компактность.
- Невысокая стоимость.
- Может использоваться для разогрева пищи, но не готовки.
- Отсутствует открытый огонь, и сооружение дымохода не потребуется.
Однако есть у агрегата и несколько недостатков:
- Не может использоваться в качестве постоянного источника теплоэнергии в жилых помещениях, так как во время работы появляется неприятный запах.
- Замену фитилей приходится проводить довольно часто.
- Требуется периодическая чистка агрегата.
Примеры конструкций
Буржуйка
Легче всего переделать под солярку печку-буржуйку. Тепловая мощность будет до 5-7 кВт при расходе топлива 300-500 мл/час. Топливная аппаратура той же конструкции практически без изменений может быть использована в более мощных отопительных котлах на дизеле, а также для запуска на отработке и керосине.
Схема доработки буржуйки под дизтопливо дана на рис. ниже. Дефлекторы не дают парам горючего остыть, прежде чем те сгорят. Кстати, дефлекторы увеличивают экономичность печи при запуске на дровах и угле. Высота бортика пламенной чаши – 60-80 мм; емкость ее не должна быть меньше емкости питательного резервуара (см. ниже). Ход печи на жидком топливе, если можно так выразиться, обратный: воздух поступает в настежь открытую дверцу топливника; поддувало закрыто. В противном случае печка становится прожорливой и быстро закоксовывается (обрастает нагаром).

Как переделать буржуйку на жидкое топливо
Питание, запуск и ход
Печь-капельница на солярке будет достаточно безопасной и проявит все свои достоинства только если топливная аппаратура собрана и налажена правильно. Выполняется питание капельной печи обязательно 2-ступенчатым, с буферным питательным резервуаром. Причина – довольно сильная зависимость частоты капели от наружной температуры и напора в подводящем трубопроводе. Напор, в свою очередь, определяется уровнем топлива в баке или степенью его наддува. Закапало реже – испаритель остыл, печка погасла, чаша переполнилась и топливо потекло наружу. Закапало чаще – капли не успевают испаряться, в чаше коптящее пламя, печка зря жрет горючку. Если нет питательного резервуара, может дойти вообще до беды: из печки потечет пылающая струя. Поэтому изготовление и запуск печей на жидком топливе с одноступенчатым питанием – занятие для оголтелых экстремалов или тех, кому терять больше нечего, а спать очень хочется.
Оба капилляра (см. рис.) выполняются из красной меди. Тут дело в смачиваемости металла топливом: по узкой трубке из другого материала оно или вовсе не просочится, или систему питания не удастся наладить. Налаживание начинают с подбора длины предохранительного капилляра диам. 1,5 мм. Объем питательного резервуара необходим 0,25-0,5 л; его высота – 7-12 см. Длину предохранительного капилляра подгоняют так, чтобы при заполненном до верха питательном резервуаре частота капели была 25-30 капель за 10 с.
Далее подгоняют питательный капилляр диам. 0,6 мм; топливо в баке должно быть залито на полный напор H. При полностью открытом игольчатом вентиле и минимально допустимой наружной температуре частота капели из топливопровода в питательный резервуар должна быть на 2-3 капли за 10 с меньше. Эту же частоту капели выставляют игольчатым краном при запуске печи при более высокой наружной температуре.
Для запуска печи в огневую чашу кладут сгорающий фитиль (см. выше). Когда он прогорит, как надо, наливают топливо в питательный резервуар и пускают капель из топливопровода. Печка будет на ходу 4-5 час; если время обогрева требуется меньшее, игольчатый вентиль прикрывают. Только от питательного резервуара ход печи продлится 1-1,5 час.

Чертежи печи с каменкой, пригодной для доработки на солярку
Для гаража
Печь на солярке и отработке для гаража
Печь на солярке для гаража должна запускаться и на отработке. Оптимальная конструкция гаражной чудо-печи показана на рис. справа; пламенная чаша под капель (выдвинута) является одновременно и емкостью для безнапорного сгорания масла. Мощность – до 5 кВт на одну колонну-дожигатель (райзер), но делать печку более чем на 2 райзера недопустимо, может взорваться! Данные конструкции:
- Материалы – квадратная профтруба 180х180х6 для лежака (камеры сгорания) и дожигателя, и 100х100х6 для райзеров.
- Длина лежака 380 мм, дожигателя 1000 мм, высота райзеров 500 мм.
- Отверстия в райзерах диаметром 10 мм на всех 4-х сторонах по 8 равномерно по оси.
- Для запуска печи на отработке питательный резервуар необходимо отсоединить, а патрубок капельницы снаружи заглушить.
- Отдельный дефлектор не нужен, им служит крышка лежака.
Принцип работы
Топливо постепенно поступает в кольцевой резервуар и пропитывает стекловолоконный фитиль, который начинает гореть. Газообразная смесь перемещается в камеру для сгорания, в которой постепенно и равномерно догорает. Горелка отдает тепло, а за счет отражающей нержавеющей поверхности повышается эффективность работы прибора.
Специальные цилиндры, расположенные в камере сгорания предоставляют возможность задействовать инфракрасный режим обогрева, а также конвекцию. Нержавеющая поверхность нагревается до 800°С и начинает прогревать воздух в помещении, а инфракрасные лучи, отражаясь от экрана, нагревают расположенные в помещение предметы.

























































