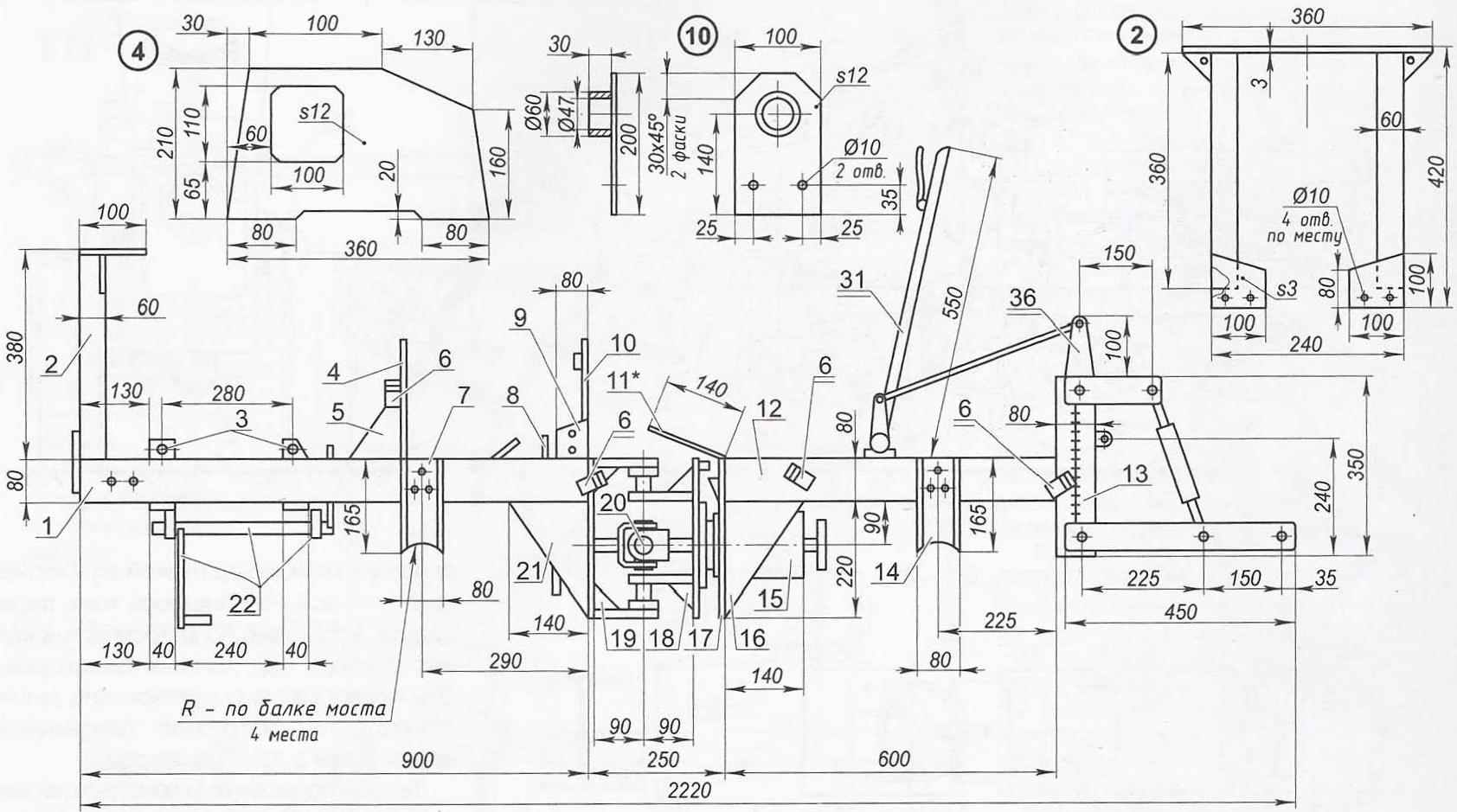
Как сделать раму
После подготовки инструментов и комплектующих, необходимых для создания минитрактора, приступают к «перекройке» рамы мотоблока, чтобы, в соответствии с чертежом, приспособить её под дополнительную пару колёс. Платформу будущей самодельной машины можно сделать цельнометаллической или переломной с использованием швеллеров или профильных металлических труб. Продольные и поперечные лонжероны сделать несложно – их нарезают болгаркой и соединяют электросваркой или крепёжными элементами. Для большей надёжности болтовые соединения комбинируют с дополнительной проваркой швов.

При трансформации культиватора в минитрактор часто используют именно переломку, состоящую из двух независимых полурам, соединенных между собой при помощи шарниров. Благодаря такой конструкции все четыре колеса трактора почти всегда контактируют с грунтом, и практически не происходит их вывешивание при эксплуатации самоделки по неровной поверхности или скользкой дороге. Это позволяет повысить устойчивость минитрактора из мотоблока, улучшить его маневренность и проходимость при осуществлении пахотных и транспортных работ.
К переднему или заднему участку подготовленной рамы монтируют по схеме навесное устройство, которое позволит трактору сделать возможной работу со вспомогательными устройствами. Можно сразу сзади приварить фаркоп для буксировки прицепа — это ещё больше расширить функциональные возможности самодельного мототрактора, полученного из мотоблока.
Развитие мотоблока в более сложные самодельные устройства
Самодельный мотоблок может послужить основой для различных более сложных агрегатов, которые можно использовать не только для культивации почвы. На базе самоделок из мотороллера «Муравей» можно изготовить минитрактор, снегоуборщик, буксировщик или иное механизированное устройство. Особенно популярно изготовление трактора из «Муравья». Для этого под двигателем на раму мотоблока крепится стальная штанга из швеллера или балки. Затем изготавливается подрессоренная двухколесная тележка с сиденьем наверху. Рессоры можно снять с того же мотороллера.
Под тележкой с сиденьем приваривается к раме такая же штанга, которая соединяется со штангой мотоблока накладной муфтой с соединениями на болтах. Это позволяет такому трактору из «Муравья» буксировать достаточно серьезные грузы. Металлическая штанга позволит распределить усилие по всей раме трактора. Есть полная возможность и для изготовления прицепа для мотоблока из «Муравья». На раму из стальной балки крепятся 4 колеса на рессорах, а сверху монтируют прямоугольную площадку из досок или листового металла, имеющую откидные борта. С передней стороны вместо откидного борта можно установить сиденье для водителя.
Различных самоделок из «Муравья» можно сделать достаточно много. Это зависит в первую очередь от технической грамотности и навыков в работе с металлом и механизмами. Кроме старого мотороллера в ход могут пойти самые разные детали и механизмы, в ином случае неизбежно отправленные в металлолом.
Главным их преимуществом, помимо достаточно низкой себестоимости, является то, что их можно максимально приспособить под конкретные надобности владельца.
Сельскохозяйственная техника, применяемая на приусадебных участках, полях, огородах и дачах, в нынешнее время представляет собой достаточно технологически развитые устройства. Практически невозможно найти человека, не использовавшего мотоблок или культиватор для облегчения труда, связанного с работой на почвах.
Можно выбрать мотоблок на любой вкус и кошелек или же смастерить самому. Часто мотор от агрегата используют для изготовления полноценного мотороллера, который также незаменим у фермеров, ведь всегда требуется перемещение грузов на большие расстояния. Рассмотрим, как произвести мотороллер Муравей с двигателем от домашнего мотоблока.
Используйте двигатель от мотоблока чтобы дать жизнь новому устройству
Многофункциональные самоделки из двигателя мотоблока
Придумывать различные самоделки из мотоблока своими руками любят люди, чей бюджет скромен и не дает возможности приобретать фирменные навесы и приставки. В базовой комплектации эта техника имеет ограниченные возможности. Но даже самый простой агрегат представляет собой двигатель внутреннего сгорания, который можно использовать как источник энергии для множества мобильных устройств. На базе мотоблока можно собрать и стационарные установки, такие как водокачка, электрогенератор и мульчер. Подсоединив к агрегату электродвигатель, можно сделать универсальный станок для обработки древесины. Самодельная пилорама на своем дворе станет отличным подспорьем в хозяйстве.

Как сделать мотоблок своими руками
Работа началась с «Муравья», вернее двигателя от мотороллера марки Т-200. Для начала перебираем. Затем делаем раму – свариваем железный лист толщиной 4 мм с трубами диаметром 4 см. Рама крепится жестко тремя опорами к двигателю.
Следующим этапом сборки явилась установка карбюратора, магнето, воздушного фильтра, глушителя. Для того, чтобы защитить двигатель от перегрева, пришлось придумать сверху крышку для принудительного охлаждения.
Цепную передачу сделали приводом от двигателя к валам с фланцами (они подошли от обычного комбайна). Важным моментом является что, частота вращения валов может быть отличной при правильном подборе шестеренок, но все равно надо аккуратно рассчитывать размер нижнего картера на раме. Если увлечься одной частотой, рама просто пойдет поверху и не достанет земли. Передаточное число двигатель-редуктор 4:1, в редукторе 2,5:1
Внутри все должно смазываться маслом – для этого сделаны люки слива и залива.
В качестве руля – обычная металлическая труба (для регулировки высоты можно телескопическую трубу взять от старого пылесоса). Работает агрегат на первой передаче, хотя КПП предусмотрено аж три. Заслонкой карбюратора управляют вручную. Впереди у мотоблока колесо, от его установки зависит насколько глубоко нужно вспахать грунт, да и не особо тяжело управлять. Вес у конструкции получился приличный – чуть меньше 90 кг.
Насадки сделал из уголка и труб, на валу они фиксируюся шпонкой в паз, что бы не было осевого перемещения зажимаем болтом. Захват по ширине -1м. 20см.
По результатам испытания выяснилось — двигатель достойно выдерживает проход по целине, можно вспахать поле на штык лопаты, пройдя по полю 2-3 раза, на ранее обработаном грунте повторного прохода не требуется. Из-за тяжелого веса не особо поворотлив, но в огороде, где нет кустов, отлично работает. Когда самодельный мотоблок необходимо переместить, вставляю колеса, которые крепятся сквозными болтами.
Для этого же агрегата замыслил сделать специальную кузовную подставку для перевозки в кузове, так же в планах уменьшить размер колес и изготовить плуги, окучиватель и картофелекопалку.
Авто самоделки своими руками, вездеходы, трактора и мотоблоки
Умелец построил самодельный минитрактор из запчастей от мотороллера «Муравей». Конструкция трактора показана на этих фото:
Минитрактор оборудован редуктором от грузового мотороллера, привод на задние колёса осуществляется цепной передачей.
На мини трактор установлен бензиновый, одноцилиндровый, двухтактный двигатель от мотороллера «Муравей», его мощность составляет 11 л.с.
Модернизация транспортных средств
Если сломался старый велосипед, скутер или мотоцикл, не стоит сдавать технику на металлолом. Также не нужно спешить с покупкой нового мотора. Его можно заменить на силовую установку от легкого мотокультиватора. Есть только 1 ограничение: на такой машине нельзя передвигаться по дорогам общего пользования. Но мотороллер Муравей с двигателем от мотоблока можно использовать на даче для поездок на поле или речку. Двигателя мощностью 5-6 л.с. вполне хватит для того, чтобы разогнать мопед до скорости 50-60 км/ч. Перед монтажом движка на велосипед необходимо установить на это средство передвижения усиленные колеса, способные выдержать вес до 100 кг.
Скачать видео и вырезать мп3 – у нас это просто!
Трёхколёсный грузовой мотоцикл ЗиД с бортовым самосвальным кузовом предназначен для доставки грузов различного типа на небольшие расстояния. Трайк LF200ZH-3 экономически выгоден не только частникам и фермерам. Такое транспортное средство часто используются коммунальными службами и на крупных промышленных предприятиях, где требуется оперативная транспортировка оборудования.
Грузовой трицикл ЗиД Лифан одинаково практичен в сельской местности и в городской среде. Как и советский мотороллер Муравей, современный мотоцикл с кузовом удобно применять для передвижения по дорогам с твёрдым покрытием, например, сварочного или любого другого оборудования для ремонта, а для жителей деревень и маленьких посёлков это просто незаменимый и верный помощник.
На модель ZID LF200ZH-3 устанавливается китайский двигатель Lifan 163 FML-2, максимальной мощностью 17.5 л.с. или 12.5 кВт. Объём одного цилиндра, расположенного вертикально, равен 200 см³. Подача топлива осуществляется через карбюратор Sheng Wey. Бензиновый четырёхтактный мотор запускается электро или кик-стартером, имеет воздушную систему охлаждения и работает на бензине марки АИ-92.
Механическая пятиступенчатая коробка переключения передач размещена в одном блоке с силовым агрегатом, многодисковое сцепление – в масляной ванне. Переключение передач водитель осуществляет ногой, а управление сцеплением расположено на руле. Моторная передача – шестерёнчатая. Для эффективного маневрирования в условиях ограниченного пространства предусмотрен реверс – задний ход.
Передняя подвеска выполнена в виде телескопической вилки с двумя пружинно-гидравлическими амортизаторами, задняя подвеска – рессорная, в которой гидравлические амортизаторы не используются. В дисках переднего и задних колёс применяются тормозные механизмы барабанного типа с механическим ножным приводом. Аварийный и стояночный тормоза приводятся в действие механическим ручным приводом.
Вместительный металлический кузов-самосвал, с тремя откидными бортами, удобно загружать/выгружать. Объём грузового отсека увеличен за счёт, так называемой, обрешётки переднего и боковых бортов. Для комфорта и безопасности водителя, на внешней стороне переднего борта, закреплена мягкая спинка, а для обзора того, что происходит сзади, грузовые трициклы ZID Lifan комплектуются зеркалами заднего вида.
Если вам необходим экономичный и недорогой, компактный и «резвый» транспорт для быстрой доставки оборудования и грузов на короткие расстояния, то лучше всего купить грузовой трицикл ЗиД Лифан или аналогичный ему трайк с кузовом. Невысокая цена, достойные технические характеристики, скорость и мобильность – главные преимущества, которыми обладают грузовые мотоциклы и мотороллеры.
| Бренд | ЗиД |
| Модель | Lifan LF200ZH-3 |
| Кабина | без кабины |
| Количество мест | 1 |
| Грузоподъёмность | 275 кг |
| Скорость | 80 км/ч |
| Модель двигателя | Lifan 163 FML-2 |
| Мощность двигателя | 17.5 л.с. (12.5 на 8000 об/мин) |
| Объём двигателя | 196.9 см³ |
| Количество цилиндров | 1 |
| Число тактов | 4 |
| Крутящий момент | 15.0 Н.м на 7000 об/мин |
| Система питания | карбюратор SHENG WEY, PD1 |
| Тип двигателя | бензиновый |
| Зажигание | электронное CDI, конденсаторное, бесконтактное |
| Система запуска | кик/электро стартер |
| Охлаждение | воздушное |
| Трансмиссия | МКПП, 5 передач |
| Реверс | есть |
| Сцепление | многодисковое, в масляной ванне |
| Рама | трубчатая, сварная |
| Кузов | металлический, самоопрокидывающийсяс тремя откидными бортами |
| Передняя подвеска | телескопическая вилка |
| Передние амортизаторы | пружинно-гидравлические, 2 шт. |
| Задняя подвеска | рессорная |
| Задние амортизаторы | нет |
| База | 2050 мм |
| Колея | 980 мм (задние колёса) |
| Дорожный просвет | 180 мм |
| Размер колёс | 3.25×16 – переднее колесо4.50×12 – задние колёса |
| Колёсные диски | литые – переднее колесоштампованные – задние колёса |
| Управление | руль мотоциклетного типа |
| Тормоза | барабанные |
| Глушитель | 1 шт., без системы нейтрализации |
| Электрооборудование | фара, поворотные огни, стоп-сигнал |
| Аккумулятор | 12В/9А.ч |
| Вид топлива | бензин АИ-92 |
| Топливный бак | 11 л |
| Расход топлива | 6.5 л (100 км) |
| Эксплуатация | по любым типам дорог с твёрдым покрытием |
| Доступные цвета | |
| Комплектация | зеркала заднего вида, инструкция |
| Масса | 305 кг |
| Снаряжённая масса | 315 кг |
| Полная масса | 580 кг |
| Размеры | 3200 × 1250 × 1440 мм |
| Производство | Сделано в России |
| Гарантия | 1 год |
29.09.2019
Электрооборудование
Самодельный мотоблок с двигателем мотороллера «Вятка» или «Муравей»

Мотоблок наделен трансмиссией с механической шестерной цепной структурой. Она имеет цепь, две шестерни канонической формы и две звездочки.

Усложнять конструкционную часть не стоит, так как этот момент может значимо затруднить свободное маневрирование. Вся конструкция должна использовать две муфты обгонного направления, которые допускают пробуксовку главенствующих колес.

Силовым узлом мотоблока является рама, в которой установлена специальная поперечина с двумя просверленными отверстиями с диаметром в 14,2 миллиметров и парой дырок в 12,2 миллиметров. Обязательно необходимо встроить во внутреннюю рамную часть два болта под номерами М12. Благодаря рассматриваемому подходу, возможно, свободно подсоединить шарнирный узелок от грузовой телеги с навесным оснащением сельскохозяйственных оборудований. Несущая палка встраивается по левую сторону от поперечины. В ней просверливается вырез для редукторного корпуса.

В передней части балки необходимо установить кронштейновую опору со стояночной сошкой.
Основная пластина, несущего характера, прикрепляется в правой стороне. Именно она держит непосредственный редуктор. Для рамы стоит использовать плиту с габаритами 280*20*8 миллиметров. По середине вышеуказанной плиты ставится специальный хомут, который крепит двигатель.

Передняя часть плиты держит стержень вертикального направления. Кронштейн необходимо приварить к данному стержню. Благодаря цепи, ведущей от выходного вала звездочки, производится основополагающий крутящий момент.
Как поставить двигатель от мотоблока на велосипед
В зависимости от того, какой формы раму имеет велосипед, мотор крепится либо на саму раму (если треугольная), либо на заднее колесо.
Для установки двигателя на велосипед необходимо поменять заднюю звездочку на звезду большего диаметра. При ее установке обязательны две прокладки – одна между спицами, другая – поверх них.
Далее делается центровка звездочки, чтобы она вращалась равномерно: установить звезду на колесо, вращая, выделять моменты, когда она выступает больше, и подкручивать в тех местах гайки.
Также необходимо установить дроссель и рычаг сцепления на разных ручках руля. Двигатель соединить с рамой, установить цепь.
Цена запчастей
Несмотря на то, что выпуск аппарата давно прекратился на него по сей день можно найти новые запчасти, которые выпускает промышленность. Некоторые детали импортные, некоторые идут в сборе. Комплектами поставляются:
- Диски сцепления.
- Прокладки для силовой установки и редуктора.
- Гайки.
- Патрубки.
- Рычаги.
Необходимые детали можно отыскать в интернете по каталогам магазинов. Цены на запчасти мотороллера «Муравей» лояльные. Вот некоторые примеры:
- Диск сцепления – 400 руб.
- Вал кикстартера – 1100 руб.
- Передний амортизатор – 1600 руб.
- Сальники редуктора – 100 руб.
- Поршневая – 2500 руб.
- Редуктор – 14000 руб.
- Ступица колеса – 2000 руб.
Судя по ценам аппарат более чем дешев в ремонте. Это является важным эксплуатационным свойством для людей на селе.
Сообщества › Околоколесица (мотоциклы, ATV, гидроциклы) › Блог › О том как я установил и настраивал четырехтактный двигатель на мотороллер «Муравей».
Мотороллер был куплен три года назад, с документами но в плачевном состоянии. Восстановил как умею.

Всем хорош «Мураш», но вот двигатель слабоват. Но все-равно много помогает по хозяйству. Ну а больше он мне нужен для отдыха, квадроцикл мне не купить, вот и катаюсь на Мурашике. За грибами, на речку, Да и просто на природу, на шашлыки.



Этой зимой решил поменять двигатель.



Еще к нему тракторный генератор докупил. Родной двигатель тоже оставил, сместил его под кузов, вместо коленвала выточил вал.

Вот видео первого испытания.
Покрасил металликом и установил сигнализацию.
Хорошо получилось, но вот ремни буксуют. Пробовал шкивы большего диаметра установить, но на четвертой все-равно буксуют. Установил звездочки с цепью и Муравей проснулся, стал очень резвым.
Вот уже катаюсь больше месяца, проехал чуть больше 100 км, теперь проблем нету, катаюсь и получаю удовольствие )))
Устройство и технические параметры
Устройства мотороллера Муравей было довольно простым и состояло из следующих основных частей:
- двигатель;
- рама;
- трансмиссия и подвеска;
- электрооборудование;
- тормозная система;
- кузов.
Такая простая конструкция мотороллера Муравей 2М 01 и его широкая унификация с двухколесной моделью Тулица (Тула) позволяла владельцам выполнять ремонт самостоятельно.
Мотороллер ТМЗ Муравей имел следующие технические характеристики и эксплуатационные параметры (в скобках приведены данные для модификации мотороллера Муравей 2М):
- Привод – 3х2.
- Грузоподъемность – 0,25 т (0,28 т).
- Двигатель: тип – бензиновый двухтактный,
- зажигание – электронное;
- количество цилиндров – 1,
- объем – 0,20 л,
- вариант охлаждения – принудительное воздушное,
- мощность – 11,0 л. с. (12,5 л. с.),
- карбюратор – К-36Г,
- топливо – смесь бензина с маслом (1/33).
Габаритные размеры:
- база – 1,78 м,
длина – 2,68 м,
ширина – 1,25 м,
высота – 2,16 м,
колея – 1,05 м,
дорожный просвет – 0,12 м.
Коробка передач:
- тип – механический,
количество передач – 4,
задняя передача – через реверс-редуктор,
способ переключения – ножная педаль.
Общие данные:
- масса – 0,24 т,
максимальная скорость – 60 км/ч, (62 км/ч),
объем топливного бака – 13,0 л,
расход топлива – 6,2 л, (6,0 л),
размер колес – 4,00–10.
Для просмотра онлайн кликните на видео ⤵

Моторолер муравей двигатель ИЖ- планета 3. Подробнее
мотороллер муровей с двигателем планета 5. Подробнее
муравей с двигателем планета спорт 28 л с Подробнее
Крепления на муравей для установки двигателя ИЖ Подробнее
Иж с двигателем от муравья. Подробнее
Обзор на мотороллер Муравей,самосвал с механизмом подъёма. Подробнее
Мото пикап на баже ИЖ П5 и Муравея. Подробнее
Муравей 2м01 с двигателем ИЖ планета 3 Подробнее
Зажигание от бензопилы на тулу Подробнее
Трицикл из Иж Планета МурИЖ Подробнее
Покатушки на Муравю. с двигателем иж планета 3 Подробнее
Мотороллер Муравей (ТГА-200) с двигателем от инвалидки. Небольшой обзор. Подробнее
Как увеличить мощность двигателя мотоцикла Иж Подробнее
Обзор на Самодельный минитрактор с Двигателем ИЖ Подробнее
Обзор модельного ряда
Популярностью на мировом рынке пользуются следующие модели мотоблоков:
- Муравей 1
- Муравей 2
- Муравей 2БС
- Муравей 2МФ
- Муравей 3
- Муравей 3БС
- Муравей 3МФ
Муравей 1
Агрегат предназначен для обработки глинистых и целинных земель, эффективен в небольших фермерских хозяйствах. Мотоблок оснащен семисильным одноцилиндровым четырехтактным мотором Honda BS170F/P, работающим от бензина.

Воздушное охлаждение защищает двигатель от перегрева во время длительных полевых работ. Запуск мотора ручной, имеется удобная рукоятка переключения оборотов двигателя. Трансмиссия с тремя скоростями (2 вперед, 1 назад). Регулируемые в двух плоскостях рукоятки создают оператору максимум комфорта. Вес мотоблока составляет 65 кг, при этом достигается глубина культивации до 30 см.
Муравей 2
Мотоблок оснащен американским бензиновым четырехтактным двигателем марки BS170F/P. Производительность мотора 7 л. с.

Трансмиссия ременная с цепным редуктором в чугунном корпусе. Три скорости движения (2+1) и регулируемые в двух плоскостях рукоятки обеспечивают комфорт оператору при работе. Вес мотоблока 82 кг, глубина культивации до 30 см.
Муравей 2БС
Эта модель оснащена четырехтактным бензиновым двигателем американского производства Briggs&Stratton, обеспечивающим мощность 6,5 л. с.

Трехскоростная трансмиссия (2+1), цепной редуктор в чугунном корпусе, регулируемая рулевая колонка, защитные крылья — все это делает работу с мотоблоком более комфортной и безопасной. Удобный переключатель оборотов позволяет плавно увеличивать, или уменьшать скорость. При весе в 100 кг достигается глубина культивации в 30 см. Возможна быстрая агрегация с любым навесным оборудованием.
Муравей 2МФ
Бензиновый мотоблок Муравей-2МФ оснащен четырехтактным мотором с воздушной защитой от перегрева. Производительность агрегата составляет 7 л. с.

Запуск двигателя от ручного стартера. Трехступенчатая трансмиссия дает 2 передних скорости и реверс. Защитные крылья защищают оператора и сам мотоблок от камней и комьев земли. Рулевая колонка регулируется в двух положениях. Агрегат весит 102 кг, при этом глубина вспашки может достигать 30 см.
Муравей 3
Мотоблок оснащен семисильным четырехтактным бензиновым двигателем Loncin BS170F/P с принудительным воздушным охлаждением.

Сцепление ременное, трансмиссия с 2 передними скоростями и реверсом. Имеются защитные крылья. Вес мотоблока 87 кг, глубина культивации до 30 см.
Муравей 3БС
На данную модель установлен четырехтактный двигатель B&S RS13U2 (RS 950) производительностью 6,5 л. с.

Запуск мотора от ручного стартера. Есть регулируемая рулевая колонка и защитные крылья. Цепной редуктор в чугунном корпусе. Трансмиссия с двумя передними скоростями и реверсом. Мотоблок легко агрегатируется с различным навесным оборудованием. При весе в 87 кг достигается глубина вспашки до 30 см.
Муравей 3МФ
Вес данной модели составляет 88 кг. На агрегат установлен бензиновый мотор марки BS170F/P, обеспечивающий производительность 7 л. с.

Рулевая колонка регулируется в двух положениях. Четырехтактный двигатель запускается от ручного стартера. Три скорости движения (2+1) обеспечивают оптимальную скорость при работе с навесным оборудованием.
Простая техника
Чтобы собрать своими руками мотоблок для вспашки обычной почвы, используют двигатель от мопеда «Карпаты». Для увеличения мощности силового агрегата рекомендуется укомплектовать технику дополнительным валом. Более мощную технику можно сделать из мотоцикла Восход, Муравей, Минск.
Самодельный мотоблок, укомплектованный двигателем от мотоцикла Восход, обладает мощностью в 13,5 л.с. Зажигание демонтируется от мотороллера «Вятка-Электрон». Чтобы поддержать нормальную работу мотора, обустраивается принудительное охлаждение. Для этого используем вентилятор приточного типа. В качестве основания для рамы используется корпус редуктора, демонтированный от ЗИЛа-130. К этой конструкции привариваем стойки подрамника силового агрегата. Сам ресивер обрезаем до 243 мм. На подрамник устанавливаем карбюратор, бензобак.
Чтобы собрать приводной вал, используют отрезки шлицевых валов из следующих агрегатов:
- коробка передач от ЗИЛа-130;
- раздаточная коробка от ГАЗа-66.
Картер фиксируется к корпусу редуктора, в котором вырезаем окно для фиксации шестерен. Следующий этап — изготовление колес. Специалисты рекомендуют сварить колеса из стали. К диску привариваем обод, к которому навариваются грунтозацепы (16 штук).
Чтобы изготовить рычаги управления мототехникой, используем стальную трубу. Вверху рычаги соединяем поперечиной, а внизу привариваем фланцы. Чтобы переключать передачи, потребуется рукоятка. Ее можно установить на левом рычаге управления.
Чтобы присоединить навесное оборудование к мотоблоку, укомплектованному двигателем от мотоцикла, изготавливается подвеска и узлы регулировки. Для фиксации первого элемента используют кронштейн. Минус самодельной сельскохозяйственной техники — отсутствие дифференциала. Чтобы развернуться, потребуются дополнительные усилия. Но такое конструктивное решение имеет свой плюс — передвижение транспорта без корректировки водителем.
Охлаждение силового агрегата
Прежде чем сделать минитрактор с двигателем от мотоцикла Урал, подготавливается схема принудительной системы охлаждения. Без нее мотор будет перегреваться. Специалисты не рекомендуют обустраивать жидкую систему охлаждения.
Принцип такой системы можно взять от мототехники (передача усилия от коленвала на вентилятор). В торце шкива нарезаем резьбу. Чтобы его зафиксировать к коленвалу, потребуется винт М7. Приточный вентилятор укомплектован 4 лепестками, вырезанными из стального листа. Вал вентилятора представлен в виде конструкции с ведомым шкивом.
Подшипник вала устанавливают в корпус. Для изготовления защитного кольца используем стальной лист толщиной в 3 мм. Корпус с подшипниками монтируем на 4 стальные спицы в центре. Чтобы зафиксировать кольцо к мотору, потребуется 3 кронштейна. Направляющий кожух изготавливается из дюралюминия. Эта деталь уменьшает рассеивание потока воздуха от вентилятора.
Самодельный минитрактор укомплектовывается КП от «Победы», мостом от «Москвича 408». Колеса можно снять с УАЗа, а диски — от Volvo. Чтобы изменить направление вращения, разворачиваем на мосту редуктор на 180º. С помощью цепей можно получить компактную минитехнику (по длине как «Урал»).
Чтобы собрать тяжелый мотоблок, используется двигатель от мотоцикла ИЖ. Так как скорость движения техники в процессе эксплуатации низкая, поэтому устанавливается система принудительного охлаждения. Для этого используют электрический вентилятор либо устройство с приводом. Чтобы направить поток воздушных масс на рабочий цилиндр силового агрегата, устанавливается защитный кожух.
Если Вы решили сделать самодельный мотоблок с двигателя мотоцикла, главным условием это — максимально использовать отработавшие узлы мототехники, минимально их переделывая. Для этого понадобится определенный опыт и накопленные знания, с большим запасом терпения и труда. Итогом подведенной работы будет надежная фермерская машина, приспособленная практически к любым условиям. Если же появится неисправность, ремонтом будет замена поломанной детали, или отказавшего узла.
Например, если взять подмоторную раму или силовой агрегат: они изготовлены на производстве. Если рассмотреть редуктор-переходник, он взят из главной передачи мотоколяски.

























































